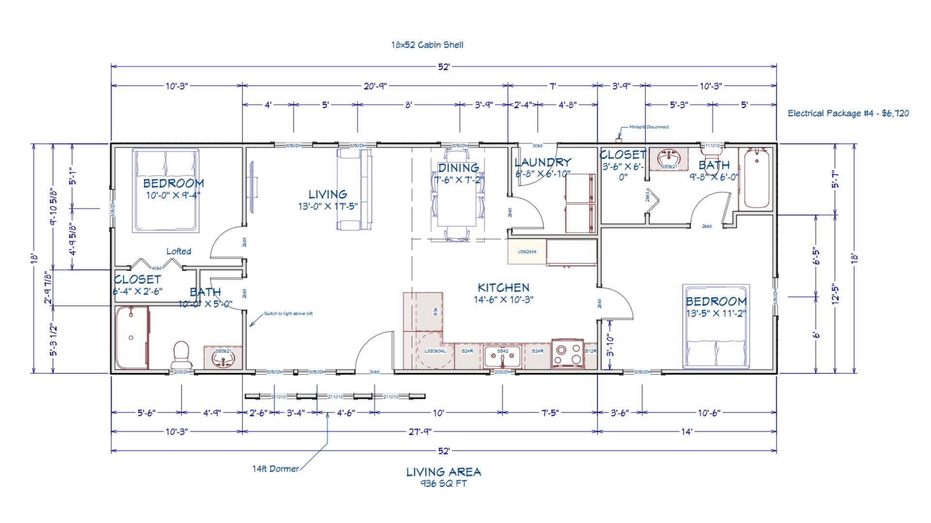
This 18x52 cabin shell is a stunning build with a functional custom floor plan featuring two bedrooms and two bathrooms. The exterior stands out with beautiful board and batten siding in a cedar and charcoal color combination, paired with a sleek black metal roof. Designed for comfort and practicality, this cabin shell offers a spacious layout that’s perfect for a full two-bedroom home while maintaining a modern rustic look that fits perfectly in any setting.














Find your favorite design and request a free quote!

Customize and confirm quote to fit your exact preferences

Place the order and recieve delivery within 2-6 weeks, enjoy it for the rest of your life!
Our main shop is located between Fort Worth and Waco.
We service 300 miles from our shop. So we will for sure have you covered and you can rest assured distance is not an issue with our top in the industry customer service and warranties.
Request a quote on a design to find out the delivery charges to your location. Delivery fees vary on size of building and distance.
- Free Delivery Within 100 Miles
- On-site Construction Available
