
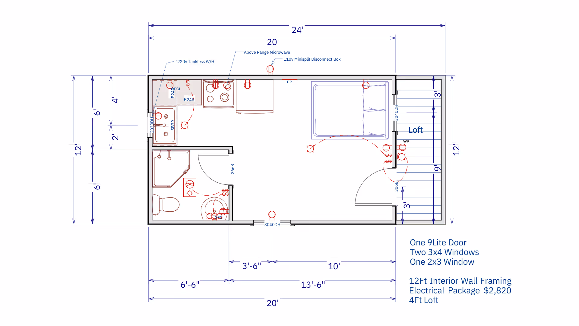
This 12x24 cabin shell floor plan features a simple one-bedroom layout with one bathroom and an open living and kitchen area. A small loft adds extra storage space, making this design a smart option for guest cabins, rentals, or efficient small living without wasted space.
customize & Request quote



.png)