
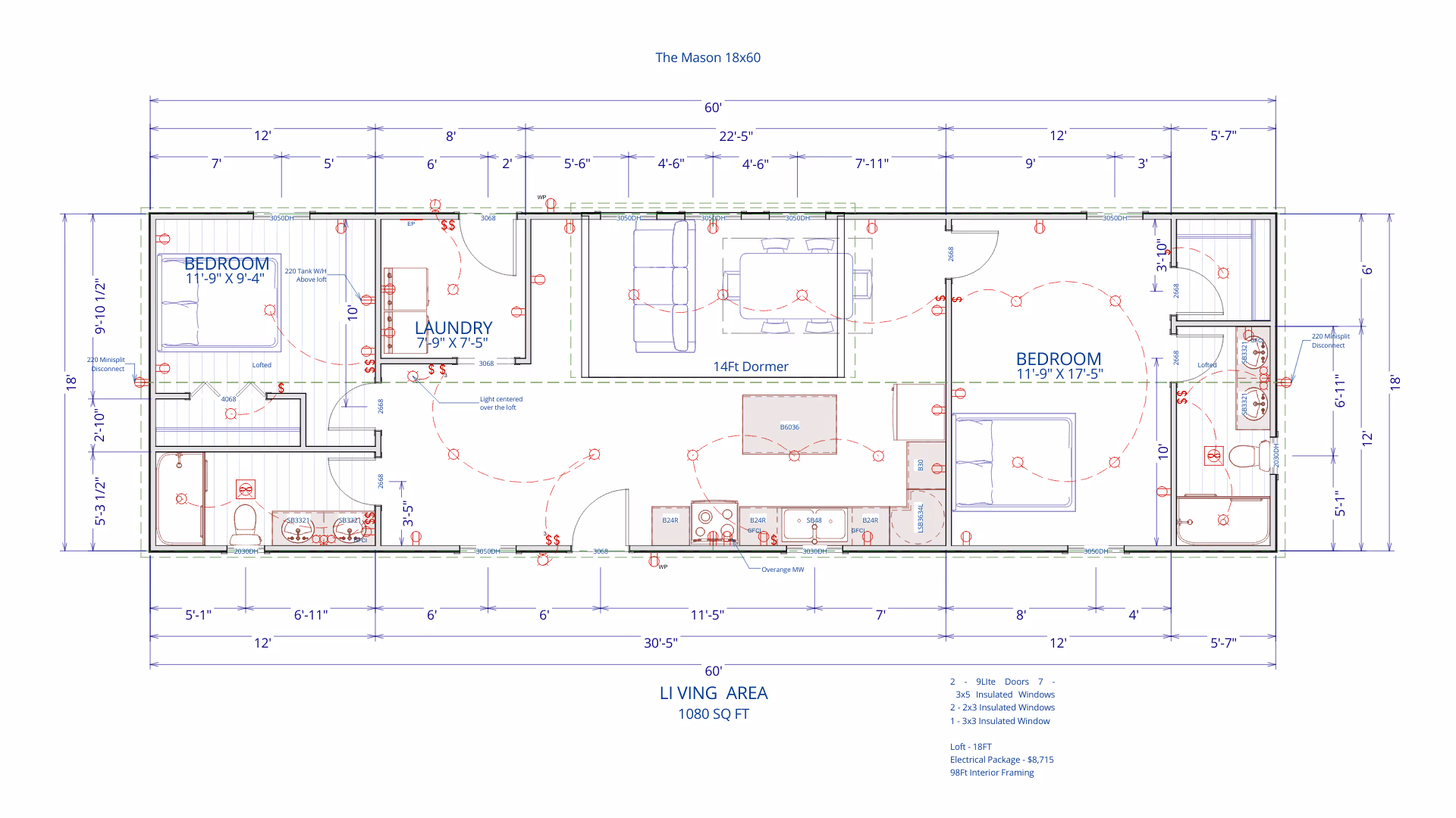
The Mason 18x60 floor plan offers a spacious two-bedroom, two-bathroom layout with an open living, kitchen, and dining area at the center. Separate bedroom zones add privacy, while a dedicated laundry space and optional loft provide everyday convenience and flexible use for full-time living.
customize & Request quote



.png)