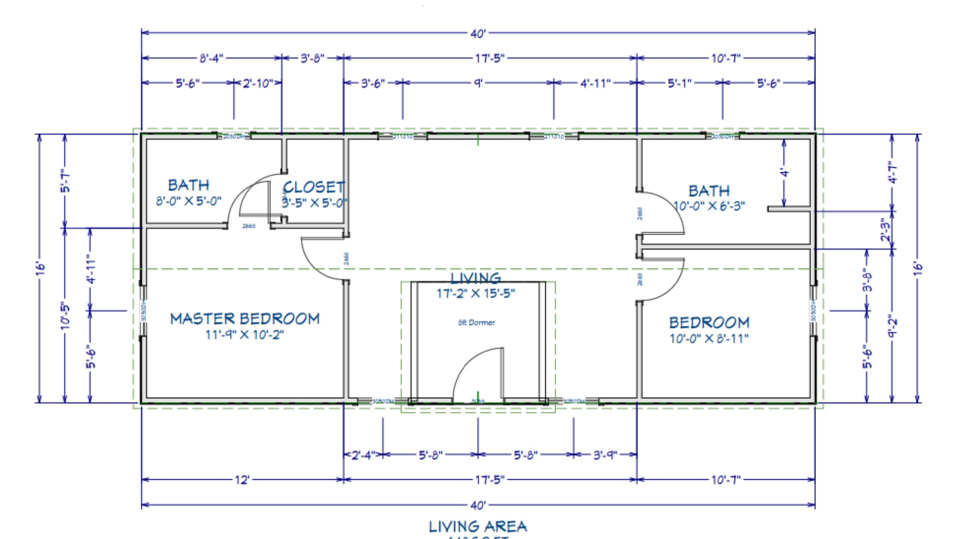
This 16x40 cabin shell is designed with a simple yet highly functional layout, featuring interior wall framing for two bedrooms and two bathrooms. An 8ft dormer centered on the roof adds natural light and headroom, giving the space an open, comfortable feel. With a clean exterior and practical floor plan, this cabin shell is a great foundation for a well-planned home or getaway.













Find your favorite design and request a free quote!

Customize and confirm quote to fit your exact preferences

Place the order and recieve delivery within 2-6 weeks, enjoy it for the rest of your life!
Our main shop is located between Fort Worth and Waco.
We service 300 miles from our shop. So we will for sure have you covered and you can rest assured distance is not an issue with our top in the industry customer service and warranties.
Request a quote on a design to find out the delivery charges to your location. Delivery fees vary on size of building and distance.
- Free Delivery Within 100 Miles
- On-site Construction Available
