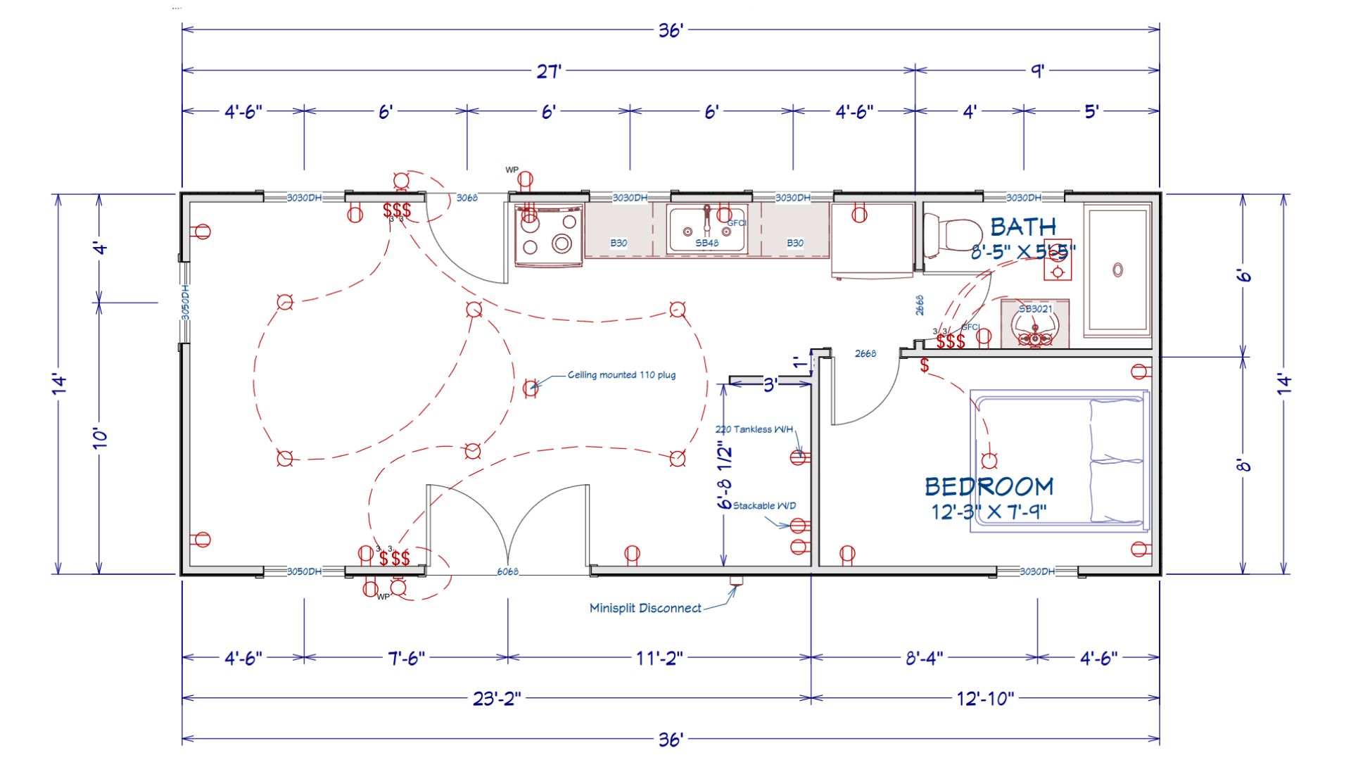
This 18x36 single slope cottage was built to a custom floor plan, complete with interior wall framing to match the customer’s layout. It includes a full electrical package and insulation on the floor, walls, and roof for year-round comfort. The design features plenty of windows to bring in natural light, while the front cottage porch adds charm and character, making this a beautiful and functional space.











View this design in 3D and make any changes you would like to see and save it!

Have any questions? We've got real people for that, make sure this is the right call and place the order.

We offer free delivery within 100 miles from Itasca, TX. Enjoy the shed about 2-6 weeks after ordering!
We service 300 miles from our shop and even more sometimes. So we will for sure have you covered and you can rest assured distance is not an issue with our top in the industry customer service and warranties.
