
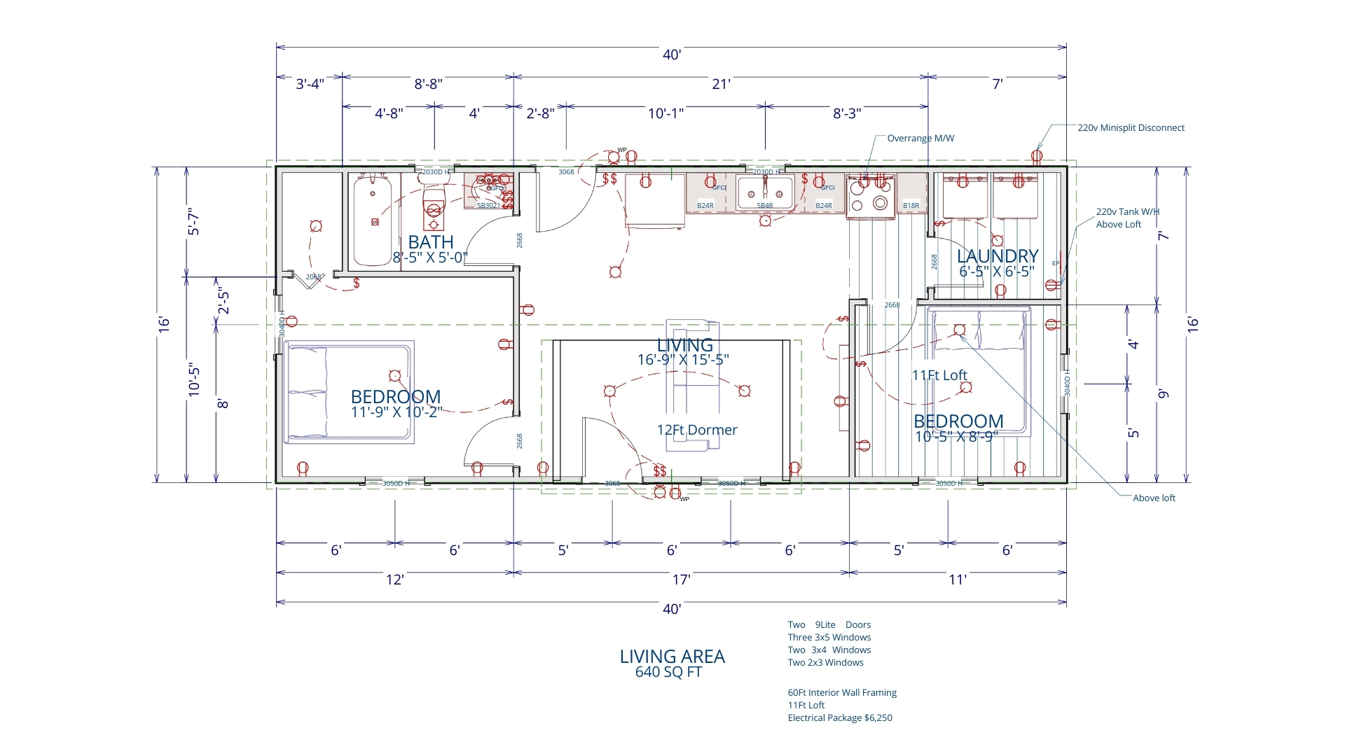
The Stampede 16x40 is a well-designed cabin shell with two bedrooms, one bathroom, and a dedicated laundry room. Its open living area and efficient layout offer comfort, flexibility, and durability—ideal for a weekend retreat, guest space, or future full-time living.
customize & Request quote







.png)